Byt 1+1, Brno – Trnitá
S terasou, půdou a výjimečným potenciálem
- 71,5 m2
- 1+1
- REZERVACE
Základní informace
- Dispozice 1+1
- Plocha 71,5 m2
- Stav - Po částečné rekonstrukci
Lokalita
- Brno - Trnitá
- ul. Mlýnská
- 5.NP
Technické údaje
- Výtah - NE
- PENB - G
- Náklady - 5 900 Kč/ měs
Popis nemovitosti
Byt 1+1 s terasou, půdou a výjimečným potenciálem
Ve výhradním zastoupení majitele nabízím byt v osobním vlastnictví o dispozici 1+1, který se nachází v 5. nadzemním podlaží zděného domu bez výtahu v atraktivní lokalitě Trnitá. Byt zabírá celé patro a díky neprůchozím pokojům poskytuje maximální soukromí. Po částečné rekonstrukci má podlahovou plochu cca 71,5 m² + terasa 10,5 m², přičemž v katastru nemovitostí je evidována původní výměra 75,9 m²– změna podílů a kolaudace úprav je k dořešení.
Zobrazit celý popis
Byt 1+1 s terasou, půdou a výjimečným potenciálem
Ve výhradním zastoupení majitele nabízím byt v osobním vlastnictví o dispozici 1+1, který se nachází v 5. nadzemním podlaží zděného domu bez výtahu v atraktivní lokalitě Trnitá. Byt zabírá celé patro a díky neprůchozím pokojům poskytuje maximální soukromí. Po částečné rekonstrukci má podlahovou plochu cca 71,5 m² + terasa 10,5 m², přičemž v katastru nemovitostí je evidována původní výměra 75,9 m²– změna podílů a kolaudace úprav je k dořešení.
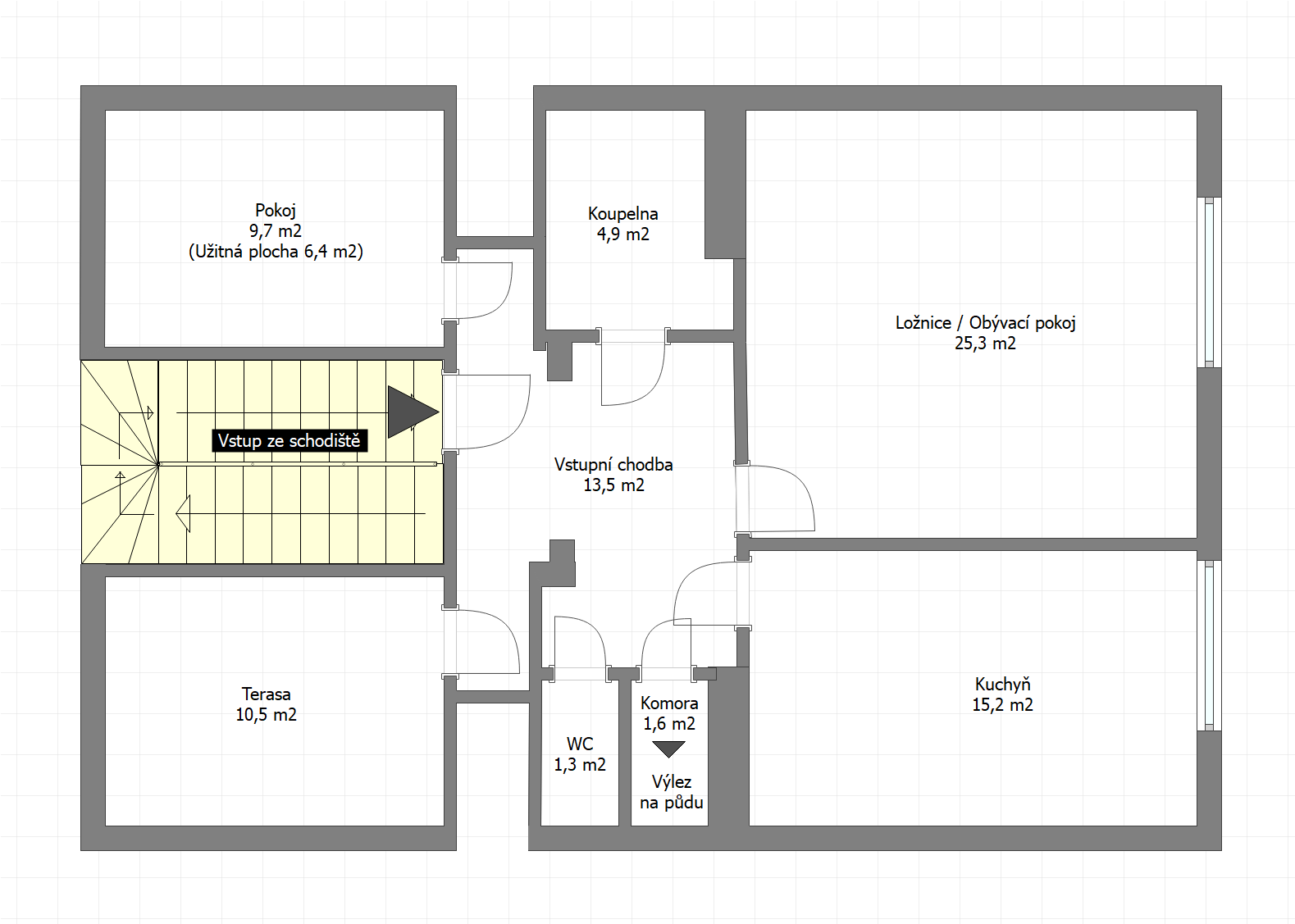
Dispozice
- vstupní chodba: 13,5 m²
- kuchyň: 15,2 m²
- hlavní pokoj: 25,3 m²
- menší pokoj: 9,7 m² (pracovna/šatna) – užitná plocha skrze šikminu 6,4 m²
- koupelna: 4,9 m²
- samostatné WC: 1,3 m²
- komora: 1,6 m²
Byt je v dobrém stavu. Proběhla rekonstrukce koupelny a WC, elektroinstalace je v mědi (2013, mimo světel), částečně nové rozvody vody a zateplení stropu pokoje pod střešní terasou. Díky vysokým stropům působí byt světlým a vzdušným dojmem.
Bonusové prostory
- terasa 10,5 m² (částečně zastřešená)
- voda i elektřina
- ideální pro posezení, práci z domova či menší zahrádku
- sklep 5 m²
- výhradní přístup k půdním prostorám cca 23 m2 (s vodou a elektřinou) – vhodné ke skladování
- možnost využití pochozí střechy nad bytem přístupné z půdy cca 40 m² (jižní orientace)
- využití zahrady ve vnitrobloku
Celkem tak získáváte výrazně více prostoru, než nabízí běžný byt této velikosti.
Technický stav
- zrekonstruovaná koupelna a WC
- dřevěná okna
- jižní strana domu zateplená
- samostatné měření elektřiny a plynu
- vytápění: plynové vafky
- ohřev vody: elektrický kotel
Měsíční náklady (2 osoby)
- fond oprav: 2 500 Kč
- plyn: 1 500 Kč
- elektřina: 1 400 Kč
- voda: 500 Kč
Celkově tedy cca 5 900 Kč / měsíc
Lokalita
- rezidentní parkování zóny C
- zastávka MHD Masná ~4 min chůze
- výborná dostupnost centra, dálnice i letiště
- kompletní občanská vybavenost
Shrnutí
- byt přes celé patro domu
- terasa + půda + sklep + pochozí střecha
- vhodné k bydlení i investici
- nízký počet bytů v domě
- atraktivní lokalita
Poznámka k právnímu stavu: Byt byl upravován na základě stavebního povolení, nicméně kolaudace těchto úprav a zápis změny podílů v katastru nebyly dokončeny. Budoucí vlastník bude mít povinnost kolaudaci a související administrativu dořešit. V katastru je evidována původní výměra, zatímco podlahová plocha po úpravách činí cca 71,5 m².
Videoprohlídka
Prohlédněte si byt v detailní videoprohlídce
Máte o nemovitost zájem?
Bc. Petr Novotný DiS.




























