Byt 3+1, Brno – Žabovřesky
Nově zrekonstruovaný byt ve skvělé lokalitě
- 41,11 m2
- 2+kk
- PRODÁNO
Základní informace
- Dispozice 2+kk
- Plocha 41,11 m2
- Stav - Před rekonstrukcí
Lokalita
- Brno - Komín
- Přízemní
- Občanská vybavenost
Technické údaje
- Výtah - NE
- PENB - C
- Náklady - 3300 Kč/ měs
Popis nemovitosti
Investiční příležitost v srdci Brna v městské části Komín: Byt 2+kk k rekonstrukci dle vašich představ!
Hledáte byt, který si můžete přetvořit přesně podle svých snů a představ? Pak je tato nabídka určena právě vám! Představuji přízemní byt 2+kk o užitné ploše 40,27 m² (plus sklepní kóje 0,84 m²) v žádané a klidné lokalitě Brno-Komín.
Zobrazit celý popis
Investiční příležitost v srdci Brna v městské části Komín: Byt 2+kk k rekonstrukci dle vašich představ!
Hledáte byt, který si můžete přetvořit přesně podle svých snů a představ? Pak je tato nabídka určena právě vám! Představuji přízemní byt 2+kk o užitné ploše 40,27 m² (plus sklepní kóje 0,84 m²) v žádané a klidné lokalitě Brno-Komín.
Váš nový domov, vaše pravidla
Tento byt se nachází v zateplené nemovitosti se třemi nadzemními podlažími, vybavené plastovými okny. Nabízí ideální základ pro kompletní rekonstrukci, která vám umožní vytvořit si bydlení na míru. Původní umakartové jádro, elektroinstalace i rozvody vody čekají na váš kreativní dotek.
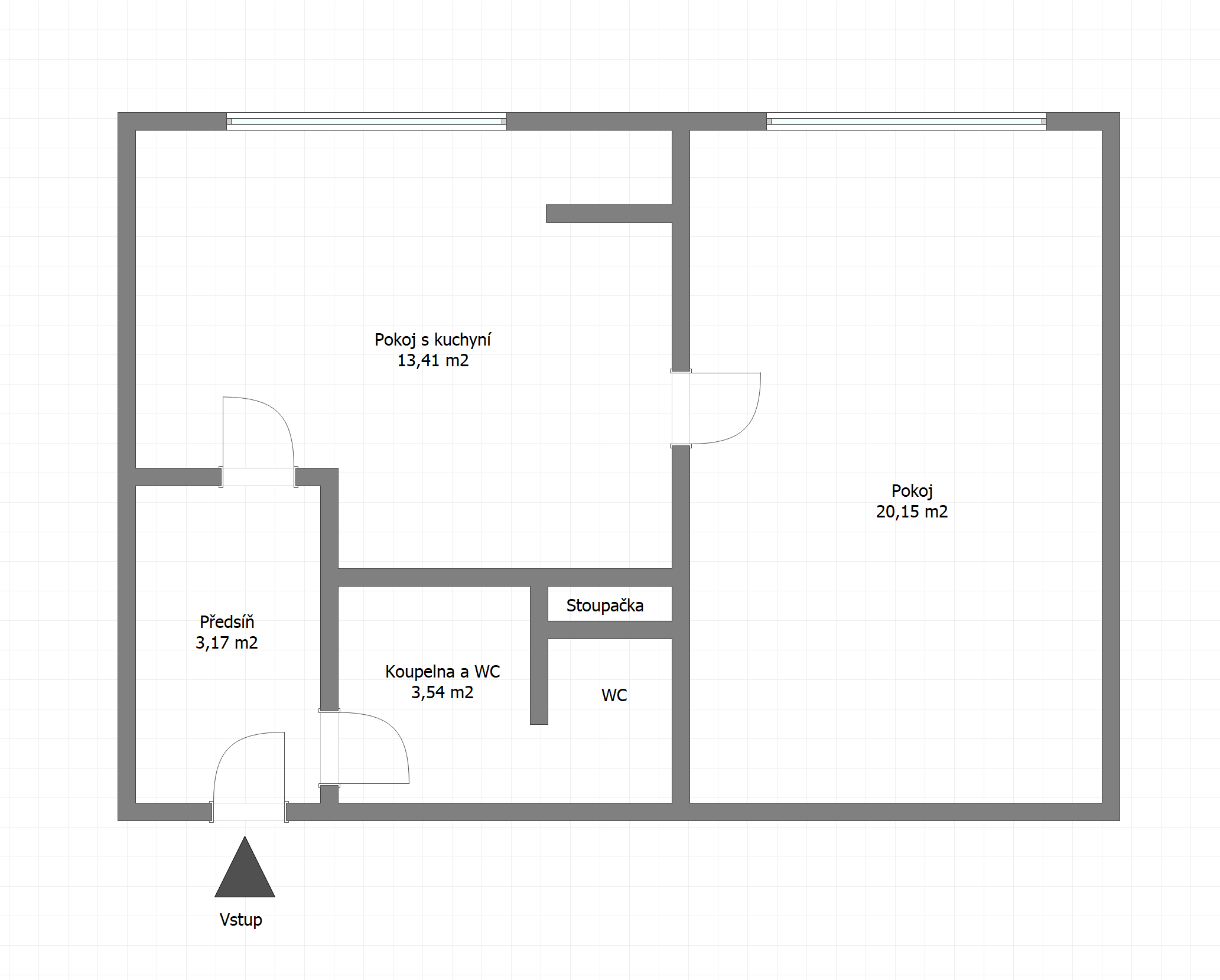
Představte si, jak si navrhnete moderní kuchyň, elegantní koupelnu a útulné obývací prostory přesně podle svých představ. Díky dispozici, která zahrnuje pokoj s kuchyní (13,41 m²), samostatný pokoj (20,15 m²), koupelnu s WC (3,54 m²) a předsíň (3,17 m²), máte dostatek prostoru pro realizaci svých designových plánů.
Výměra nemovitosti
Celková užitná plocha nemovitosti je 41,11m2 kdy pak:
Užitná plocha bytu – 40,27 m²
Pokoj s kuchyní 13,41m2
Pokoj 20,15m2
Koupelna s WC 3,54m2
Předsíň 3,17m2
Kóje – 0,84m2
Náklady na provoz jsou přibližně:
Fond oprav – 1100Kč
SVJ, vytápění, teplá vody – 1600Kč
Elektřina – 600 Kč
————————-
Celkem 3300Kč
Brno-Komín: Kvalitní život na dosah ruky
Lokalita Brno-Komín je jednou z nejvyhledávanějších brněnských čtvrtí a není divu! Nabízí perfektní kombinaci klidného bydlení a vynikající občanské vybavenosti.
• Příroda na dosah: Komín je známý svou blízkostí k přírodě. Jen pár kroků od bytu najdete cyklostezky podél řeky Svratky, které vás zavedou až k Brněnské přehradě – ideální místo pro relaxaci, sport a rodinné výlety. Milovníci procházek a zeleně ocení i nedaleké lesy a parky.
• Kompletní občanská vybavenost: V Komíně najdete vše, co potřebujete pro pohodlný život. Mateřské a základní školy, supermarkety, menší obchody, pošta, lékárny i restaurace a kavárny jsou v docházkové vzdálenosti.
• Dopravní dostupnost: Díky skvělému napojení na městskou hromadnou dopravu se snadno a rychle dostanete do centra Brna i do ostatních částí města. V blízkosti jsou zastávky autobusů a tramvají.
• Klid a bezpečnost: Komín je pověstný svou klidnou a bezpečnou atmosférou, což z něj činí ideální místo pro rodiny s dětmi i pro ty, kteří hledají únik od shonu města.
Nenechte si ujít jedinečnou příležitost vlastnit byt v atraktivní lokalitě Brno-Komín, který si můžete kompletně přizpůsobit svým představám. Vytvořte si domov, po kterém toužíte, a užívejte si všechny výhody, které tato skvělá čtvrť nabízí!
Zaujala vás tato nabídka? Kontaktujte mě a domluvte si prohlídku!
Videoprohlídka
Prohlédněte si dům v detailní videoprohlídce
Reels prohlídka
Prezentace ze sociálních sítí
Máte o nemovitost zájem?
Bc. Petr Novotný DiS.
















