Byt 3+1, Brno – Žabovřesky
Nově zrekonstruovaný byt ve skvělé lokalitě
- 76,46 m2
- 3+1
- PRODÁNO
Základní informace
- Dispozice 3+1
- Plocha 76,46m2
- Stav - Po rekonstrukci
Lokalita
- Brno - Žabovřesky
- 2.patro
- Občanská vybavenost
Technické údaje
- Výtah - ANO
- PENB - C
- Náklady - 5600 Kč/ měs
Popis nemovitosti
V exkluzivním zastoupení majitele Vám nabízím krásně zrekonstruovaný byt 3+1 se dvěma lodžiemi v Brně – Žabovřeskách na ulici Poznaňská. Byt se nachází ve 2 patře s výtahem, ve velmi klidné lokalitě, kde můžete spokojeně bydlet a najít přátele.
Zobrazit celý popis
V exkluzivním zastoupení majitele Vám nabízím krásně zrekonstruovaný byt 3+1 se dvěma lodžiemi v Brně – Žabovřeskách na ulici Poznaňská. Byt se nachází ve 2 patře s výtahem, ve velmi klidné lokalitě, kde můžete spokojeně bydlet a najít přátele.
Popis dispozice
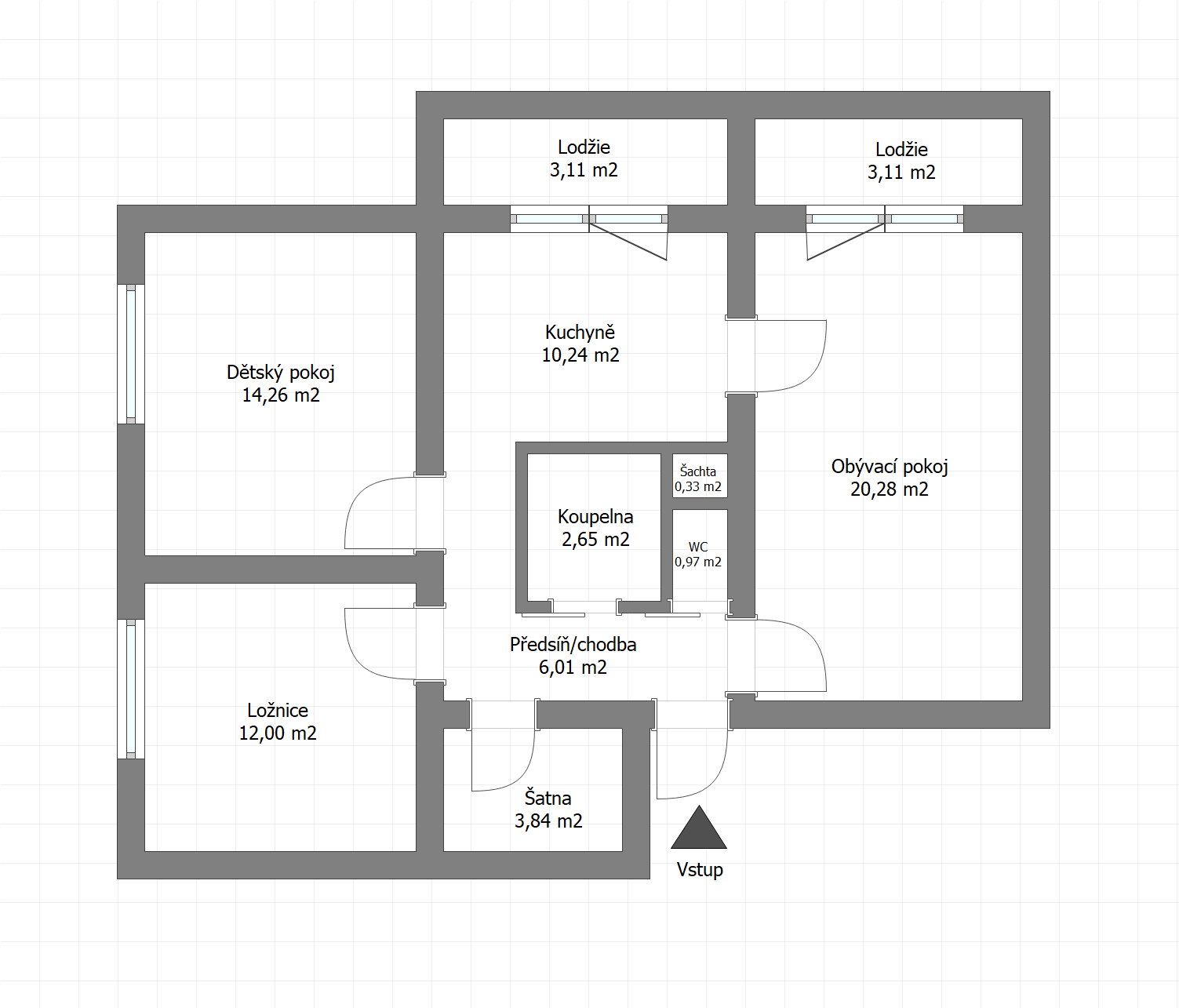
Po vstupu do předsíně je možné se dostat do všech pokojů umístěných v bytě. Uprostřed bytové jádro provedené z SDK a nachází se zde WC a koupelna.
Po vstupu se po pravé straně předsíně nachází velmi prostorný obývací pokoj s vlastní lodžií a je z něj možné vstoupit do kuchyně.
Po vstupu se po levé straně nachází šatna, ložnice a dětský pokoj, opět pak vstup do kuchyně.
Kuchyně má také svoji vlastní lodžii.
Všechny podlahy v bytě jsou vinylové.
Výměry nemovitosti
Celková užitná plocha nemovitosti je 82,68m2 kdy pak:
Užitná plocha bytu – 70,58m2
• Kuchyně 10,24m2
• Dětský pokoj 14,26m2
• Ložnice 12,00m2
• Obývací pokoj 20,28m2
• WC 1,30m2 včetně revizní šachty
• Koupelna 2,65m2
• Předsíň 6,01m2
• Šatna 3,84m2
2 x Lodžie – celkem 6,22m2
Sklep 5,88m2
Popis bytu
Byt je po kompletní rekonstrukci v roce 2022, kdy se dělalo nové jádro z SDK, podlahy (všude vinyl), koupelna, WC, nová kuchyňská linka a dveře.
Veškeré vybavení v bytě je součástí prodeje.
V lodžiích jsou instalovány zatahovací rolety (1x manuální, 1x elektrické).
Orientace bytu
Ložnice a Dětský pokoj Jih, Obývací pokoj a Kuchyně na Západ.
Stav domu
Dům je v krásném pečlivě udržovaném stavu. V roce 2023 se instaloval nový výtah. V roce 2012 se realizovala nová fasáda, nová okna a elektřina ve společných částech domu. V roce 2024 nové izolace sklepů proti tlakové vodě. V roce 2022 se provedlo nové elektro ve sklepě.
Náklady na provoz
Fond oprav, SVJ, vytápění, teplá vody – 3 756 Kč
Elektřina – 1 730 Kč
Plyn – 150 Kč
————————-
Celkem 5 636 Kč
Energetická třída
Třída C – Úsporná
Chcete garáž?
Je zde možnost přikoupit také garážové stání přímo v domě, to je umístěno v přízemí pod bytem.
Financování
Nákup bytu lze bez problémů financovat hypotečním úvěrem, bezplatné a nezávazné informace na vyžádání u makléře.
Jiné
Skvělá klidná lokalita. Dům se nachází v krásném prostředí, v okolí je veškerá občanská vybavenost včetně obchodů, služeb a zastávek MHD. Díky své poloze a velikosti je byt vhodný nejen k bydlení, ale také jako investice k pronájmu.
Dle Průkazu energetické náročnosti je dům klasifikován pod písmeno C.
Zaujal-li Vás tento byt, přijďte se podívat.
Jestli řešíte prodej Vaší nemovitosti, bude mi ctí Vám pomoci a poradit.
Videoprohlídka
Prohlédněte si dům v detailní videoprohlídce
Reels prohlídka
Prezentace ze sociálních sítí
Máte o nemovitost zájem?
Bc. Petr Novotný DiS.



















