RD 4+1, Bulhary
Samostatně stojící rodinný dům
- 200 m2
- 4+1
- PRODÁNO
Základní informace
- Dispozice 4+1
- Plocha 200 m2
- Stav - Velmi dobrý
Lokalita
- Bulhary
- Klidná ulice u řeky
- Vinařská oblast
Technické údaje
- Vytápění - Plyn, Dřevo
- PENB - G
- Energie - 5100 Kč/ měs
Popis nemovitosti
V exkluzivním zastoupení majitele Vám nabízím prodej samostatně stojícího patrového rodinného domu o dispozici 4+1 o celkové užitné ploše 200 m2 s vlastní garáží v obci Bulhary.
Jedná se o starší objekt s dokončením výstavby kolem roku 1995. Dům je ve velmi pěkném a udržovaném stavu.
Zobrazit celý popis
V exkluzivním zastoupení majitele Vám nabízím prodej samostatně stojícího patrového rodinného domu o dispozici 4+1 o celkové užitné ploše 200 m2 s vlastní garáží v obci Bulhary.
Jedná se o starší objekt s dokončením výstavby kolem roku 1995. Dům je ve velmi pěkném a udržovaném stavu.
Před 7 lety prošel dům rekonstrukcí, kdy proběhla výměna oken a zateplení fasády.
Popis dispozice
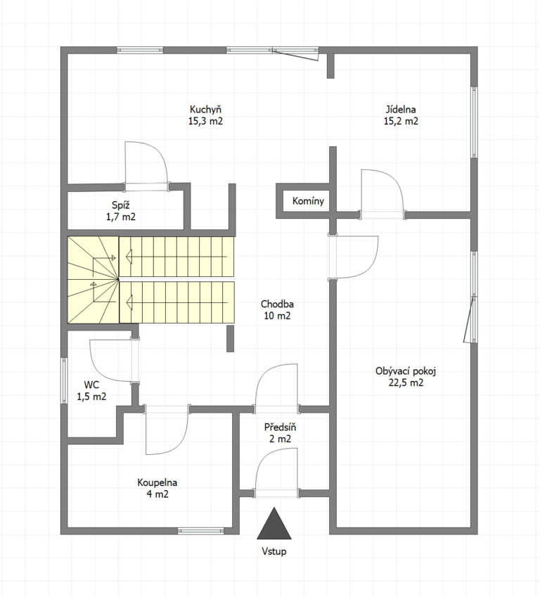
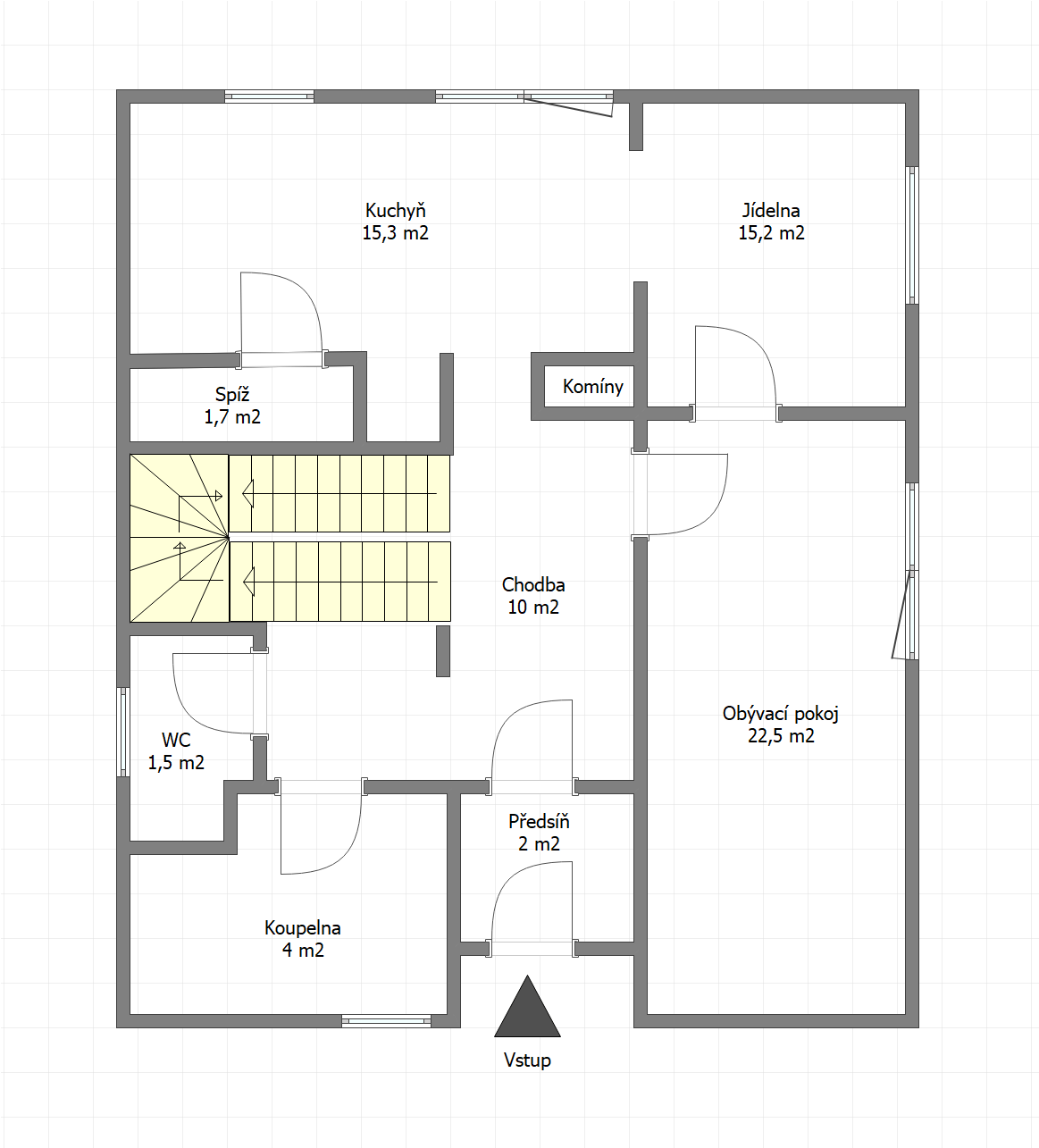
V prvním nadzemním podlaží domu ihned za předsíní je vstup na prostornou chodbu, která spojuje vždy všechny místnosti v patře, dostaneme se zde tedy rovnou do kuchyně s jídelnou, obývacího pokoje a také a samostatné WC a koupelnu.
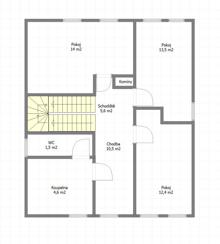
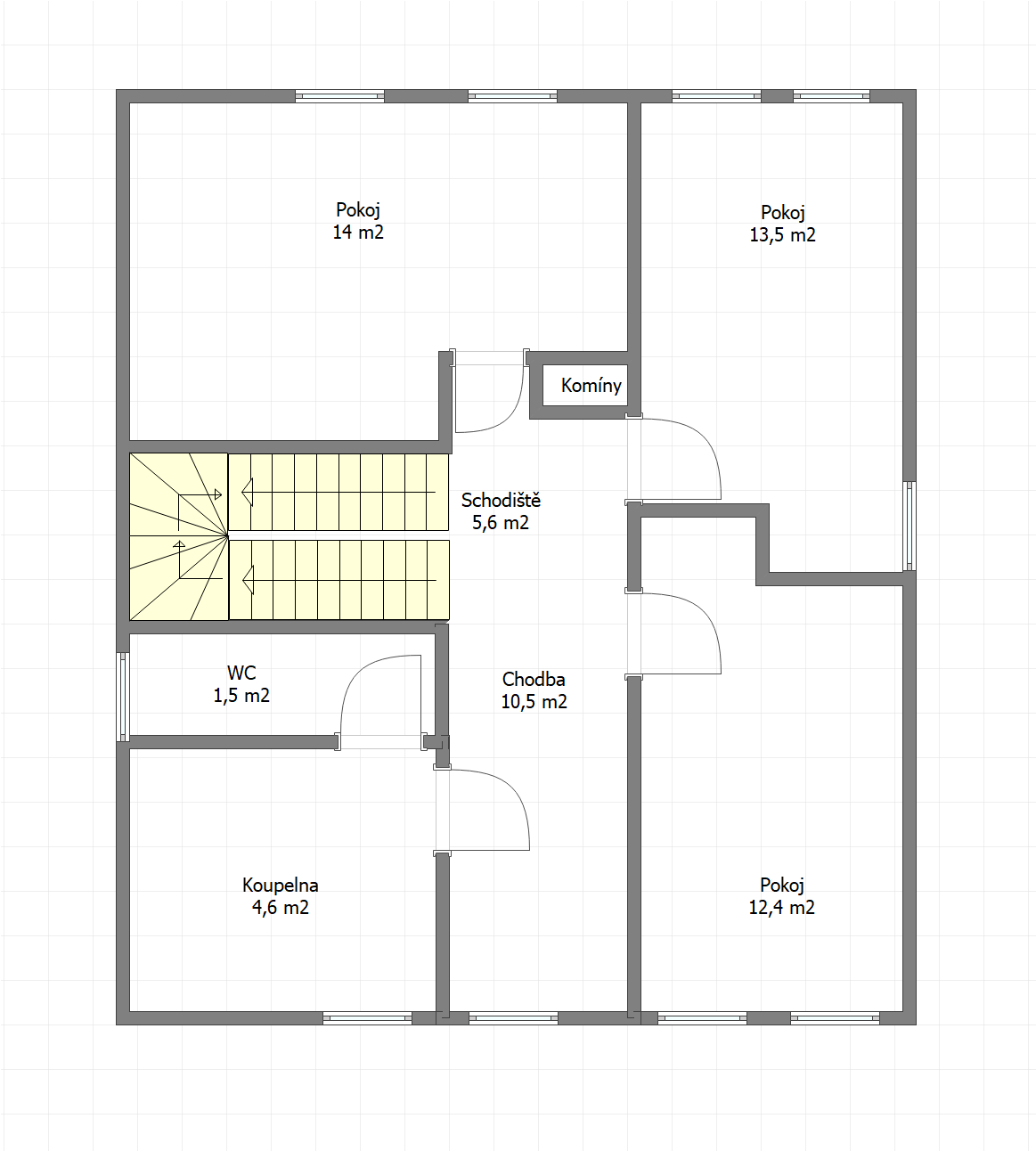
Druhé nadzemní podlaží je řešeno primárně pro pokoje a do všech je vždy vstup opět z prostorné chodby, pro celé patro je zde opět koupelna se vstupem na WC.
V suterénu pak najdeme garáž, skladovací prostory a kotelnu.
Výměry nemovitosti
Suterén vč. garáže 69,5 m2
1NP 68,2 m2
2NP 56,8 m2
Schodiště 5,6 m2
Celková plocha parcel pozemků nemovitosti je 2022 m2
Popis nemovitosti
Zdivo suterénu je z plných cihel a betonu. Obvodové zdivo a vnitřní zdivo v nadzemních podlažích je z pórobetonových panelů Siporex. Komínové zdivo je z pálených cihel s vložkami. Schody jsou ocelové s dřevěnými stupnicemi. Stropní konstrukce je z ocelových nosníků a tvárnic HURDIS a alternativně ze železobetonových prefabrikátů. Strop nad podkrovím je vytvořen z konstrukcí krovu se zateplením minerální plstí a podbitím deskami VELOX s omítkou na vnitřní straně. Krov je dřevěný s pálenou střešní krytinou.
Podlaha v garáži je betonová.
Okna jsou plastová
Zatepleno fasádním polystyrenem v tloušťce 8cm.
Dům je velmi zachovalý a po celou dobu byl užíván.
Internet v domě
Inženýrské sítě a zdroje vytápění
Dům je napojen na veřejný vodovod, elektřinu a plynovod.
Stávající vytápění a ohřev teplé vody je řešen novým plynovým kotlem.
Splaškové vody jsou likvidovány pomocí jímky na vyvážení, která je umístěna před domem a dobře dostupná z hlavní cesty.
Občanská vybavenost v obci:
Obec Bulhary nabízí svým obyvatelům základní občanskou vybavenost pro komfortní život. Najdete zde mateřskou školu, což ocení zejména rodiny s malými dětmi. Nechybí ani obchod s potravinami, kde si nakoupíte vše potřebné. Dále zde funguje pošta a několik pohostinství, která nabízejí příjemné posezení a možnost setkávání. Pro aktivní trávení volného času slouží sportovní hřiště a různé spolky, které organizují místní akce.
Okolí a dopravní dostupnost:
Jednou z největších předností Bulhar je její okolí. Nachází se v CHKO Pálava, což zaručuje nádhernou přírodu a mnoho možností pro turistiku a cyklistiku. Obec je součástí Lednicko-valtického areálu, který je zapsán na seznamu UNESCO a láká na zámky, parky a vinné sklepy. Pro milovníky vína je zde mnoho vinných sklípků a stezek. Dobrá dopravní dostupnost do větších měst, jako je Břeclav (cca 10 km) a Brno (cca 50 km), je zajištěna pravidelnou autobusovou dopravou.
Bulhary tak představují perfektní kombinaci poklidného života v přírodě s pohodlným přístupem k městským vymoženostem. Je to místo, kde si můžete užívat krásu jižní Moravy plnými doušky.
Jiné
PENB není zatím k dispozici, proto uvádím třídu „G“
Prodávající si vyhrazuje právo vybrat kupujícího na základě jím zvolených kritérií.
Zaujal-li Vás tento dům, přijďte se podívat.
Videoprohlídka
Prohlédněte si dům v detailní videoprohlídce
Reels prohlídka
Prezentace ze sociálních sítí
Máte o nemovitost zájem?
Bc. Petr Novotný DiS.




































