Petr Novotný – profesionální služby v oblasti nemovitostí

RD 5+kk, Vésky – Uherské Hradiště

Spojení luxusu, komfortu a praktičnosti.

Základní informace

Lokalita

Technické údaje

Popis nemovitosti

V exkluzivním zastoupení majitele Vám nabízím prodej moderního prostorného domu s vlastním parkováním o třech nadzemních podlažích v Uherském Hradišti v místní části Vésky. Jedná se o novostavbu zkolaudovanou 11/2024 o dispozicí 5+KK se dvěma koupelnami s terasou a malou zahradou.

V exkluzivním zastoupení majitele Vám nabízím prodej moderního prostorného domu s vlastním parkováním o třech nadzemních podlažích v Uherském Hradišti v místní části Vésky.

Jedná se o novostavbu zkolaudovanou 11/2024 o dispozicí 5+KK se dvěma koupelnami s terasou a malou zahradou.

 

Výměra nemovitosti

Celková užitná plocha nemovitosti je 199,5 m2 kdy pak:

Sklep

Sklep se schodištěm 19,3 m2

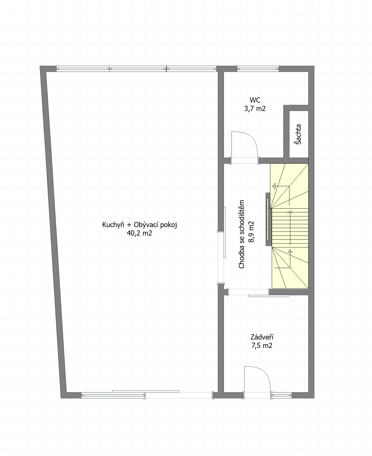
Přízemí

Zádveří 7,5 m2

Kuchyň s obývacím pokojem 40,2 m2

Chodba se schodištěm 8,9 m2

WC 3,7m2

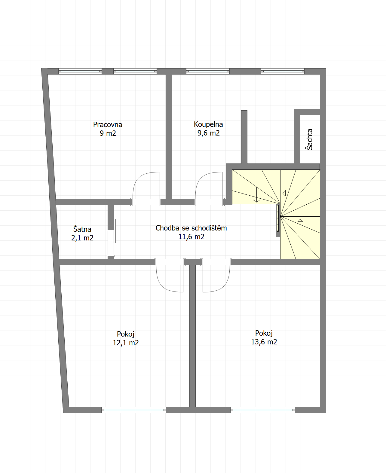
1NP

Pokoj 13,6 m2

Pokoj 12,1 m2

Pracovna 9 m2

Šatna 2,1 m2

Koupelna 9,6 m2

Chodba se schodištěm 11,6 m2

2NP

Ložnice 16 m2 + balkon 9 m2

Šatna + technická místnost 17,9 m2

Koupelna 6,5 m2

Sklad 3,8 m2

Chodba se schodištěm 8,7 m2

 

Popis dispozice

V přízemí najdeme krásně zařízenou kuchyni s obývacím pokojem, vstupem na terasu s menší bezúdržbovou zahradou. Kuchyň je doplněna o ostrůvek s žulovou pracovní deskou a Je vybavena spotřebiči značky Neff (ekvivalent Bosch) (lednice, trouba, mikrovlnná trouba, myčka, vestavný kávovar.) Příjemnou Atmosféru obývacího pokoje dotváří krbová kamna, obložena přírodním kamenem. Jako vychytávka je zde instalován kohoutek s instantní horkou vodou.

Z chodby v přízemí je vstup do vytápěného sklepa, který lze využít i jinak než jen ke skladování věcí a to například jako saunu. A dále je z chodby vstup na WC pro hosty, kde je prostor na pračku a sušičku. V celém přízemí je položena dlažba z přírodního kamene a Dveře v celém domě jsou dubové s dřevěnými obložkami.

V prvním patře se nachází 3 prostorné pokoje s dubovými podlahami a prostorná úchvatně vypadající koupelna z přírodního kamene, kde najdeme vanu a skvěle řešený sprchový kout.

Ve druhém patře nalezneme ještě další dva pokoje, a to pracovnu, kterou je možné využít také jako šatnu, tak Ložnici s velkým balkonem a se svou vlastní prostornou koupelnou.

 

Další informace

  • Dvě parkovací místa před domem
  • Vytápění tohoto domu zajišťuje plynový kotel s teplovodním podlahovým topením
  • Hliníková okna s izolačním trojsklem
  • V každém podlaží je připravena klimatizace
  • Příprava na nabíječku pro elektromobil
  • HS portál ke vstupu na terasu
  • Retenční nádrž 4m3
  •  

Energetická třída

Dle PENB je hodnoceno jako „C“ – úsporné

 

Náklady na bydlení

Dle PENB se odhadují měsíční náklady na provoz nemovitosti (elektřina a plyn) na 5 500,-/měsíc

 

Orientace domu

Vstup je orientován na jiho-západ

 

Dokončovací práce

Stále probíhají dokončovací práce na interiéru, před předáním bude již kompletně dokončeno osazení soklů na schodištích a obvodových lišt v pokojích.

 

Financování
Nákup bytu lze bez problémů financovat hypotečním úvěrem, bezplatné a nezávazné informace na vyžádání u makléře.

Fotogalerie

Videoprohlídka

Prohlédněte si dům v detailní videoprohlídce

Reels prohlídka

Prezentace ze sociálních sítí

Dispozice nemovitosti

Lokalita a okolí

Dronové záběry

Vizualizace

3D půdorysy

Virtuální prohlídka

Máte  o nemovitost zájem?

Formulář kontatktní
Přejít nahoru