Petr Novotný – profesionální služby v oblasti nemovitostí

RD 5+kk, Vésky – Uherské Hradiště

Spojení luxusu, komfortu a praktičnosti.

Základní informace

Lokalita

Technické údaje

Popis nemovitosti

Vítejte ve světě moderního bydlení! Přesně takový je zcela nový dvojdomek 5+kk v Uherském Hradišti – Véskách, který čeká na své první majitele. Nabízím vám exkluzivní možnost koupě jedné z dokončených částí, zkolaudované v roce 2025, která představuje spojení luxusu, komfortu a praktičnosti.

Vítejte ve světě moderního bydlení! Přesně takový je zcela nový dvojdomek 5+kk v Uherském Hradišti – Véskách, který čeká na své první majitele. Nabízím vám exkluzivní možnost koupě jedné z dokončených částí, zkolaudované v roce 2025, která představuje spojení luxusu, komfortu a praktičnosti.

 

Luxusní provedení a promyšlené dispozice

Tento dům o celkové užitné ploše téměř 220 m² je navržen s důrazem na detail a použití prvotřídních materiálů.

• Podlahy z přírodního kamene a dubové podlahy v ložnicích pro elegantní a hřejivý pocit.

• Dubové dveře s dřevěnými obložkami v celém domě.

• Hliníková okna s izolačním trojsklem a HS portál, zajišťující dostatek světla a nízké náklady na energie.

• Moderní kuchyň s ostrůvkem a žulovou pracovní deskou, vybavená špičkovými spotřebiči.

• Krbová kamna obložená přírodním kamenem v obývacím pokoji pro útulnou atmosféru v chladných měsících.

 

Prostor pro život i relaxaci

Dům se rozprostírá na třech podlažích a nabízí velkorysé a funkční rozložení:

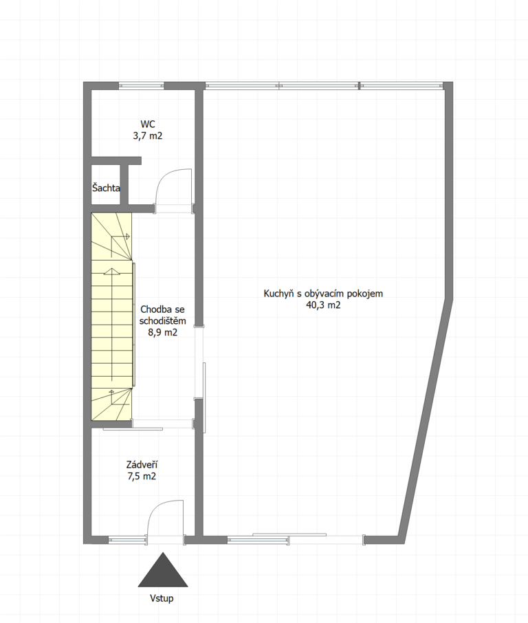
• Přízemí: Dominantou je prostorný obývací pokoj propojený s kuchyní (40,3 m²) s přímým vstupem na terasu a malou bezúdržbovou zahrádku. Nechybí zde ani samostatné WC pro hosty s prostorem pro pračku a sušičku.

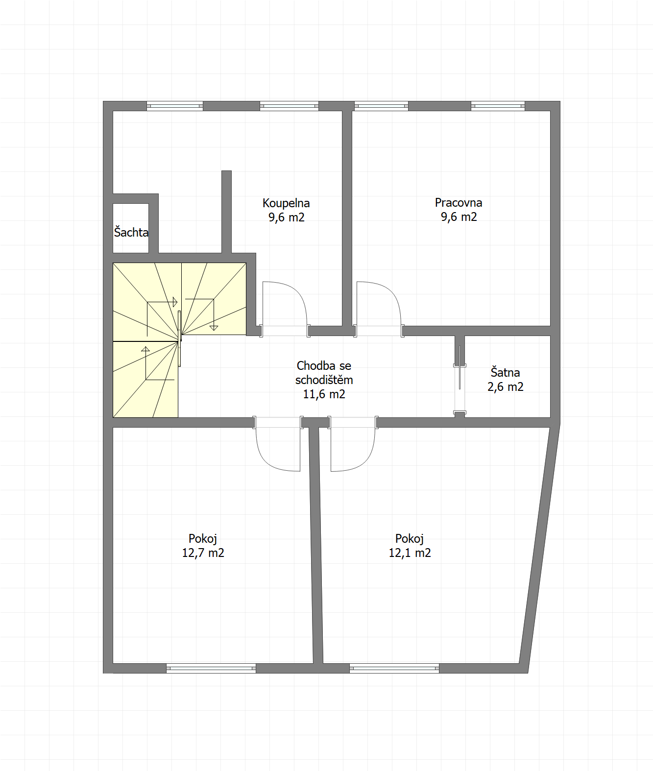
• První patro: Zde najdete tři samostatné pokoje (12,7 m², 12,1 m², 9,6 m²), ideální pro děti, hosty nebo jako pracovna. Dominantou patra je prostorná a úchvatná koupelna z přírodního kamene s vanou a skvěle řešeným sprchovým koutem.

• Druhé patro: Soukromí a komfort rodičů zajišťuje ložnice (16 m²) s vlastním prostorným balkonem (9 m²) a privátní koupelnou (7 m²). Dále se zde nachází další pokoj (pracovna/šatna) a technická místnost.

• Vytápěný a prostorný sklep (17,8 m²), který lze využít nejen ke skladování, ale i jako posilovnu, saunu nebo vinný sklípek.

 

Praktické výhody a moderní technologie

• Dvě parkovací místa přímo před domem.

• Plynový kotel s teplovodním podlahovým topením pro efektivní a příjemné vytápění.

• Příprava na klimatizaci v každém podlaží.

• Příprava na nabíječku pro elektromobil.

• Retenční nádrž 4m³ pro hospodaření s dešťovou vodou.

 

Stav dokončení a možnosti úprav

• Osazeny sloupky zábradlí (bez skleněných výplní, které si můžete doladit dle svého vkusu).

• Koupelna v 1. NP dokončena bez zařizovacích předmětů

• Technická místnost na pračku a WC v přízemí dokončena bez zařizovacích předmětů.

• Koupelna ve sklepě je připravena k dokončení kompletně dle Vašich představ tedy bez obložení a zařizovacích předmětů

• Dům není vybaven světly, což Vám dává volnou ruku pro výběr osvětlení.

Veškeré dodělávky může prodávající dokončit přesně podle Vašich požadavků.

Tento dům představuje ideální kombinaci moderního bydlení, komfortu a skvělé lokality. Je to příležitost získat domov, který můžete dotáhnout k naprosté dokonalosti podle svých představ.

Dle PENB je hodnoceno jako „D“

 

Náklady na bydlení

Měsíční náklady na provoz nemovitosti (elektřina a plyn) na 5 500,-/měsíc

Fotogalerie

Videoprohlídka

Prohlédněte si dům v detailní videoprohlídce

Reels prohlídka

Prezentace ze sociálních sítí

Dispozice nemovitosti

Lokalita a okolí

Dronové záběry

Vizualizace

Máte  o nemovitost zájem?

Formulář kontatktní
Přejít nahoru